Suivez Cydrick architecture sur les autres plateformes.
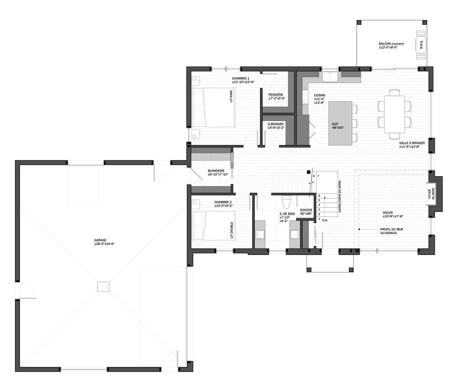
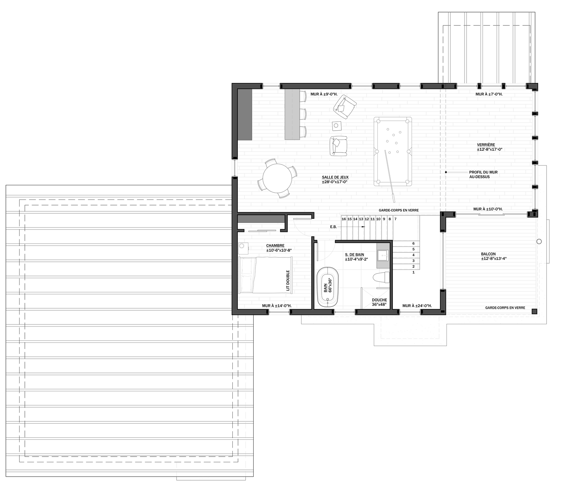
Saint-Hyacinthearchitecture moderne
Modélisation 3D
Croquis
Tous droits réservés | Cydrick architecture