Suivez Cydrick architecture sur les autres plateformes.
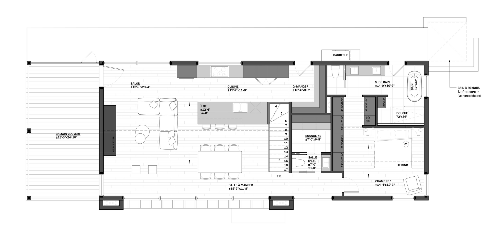
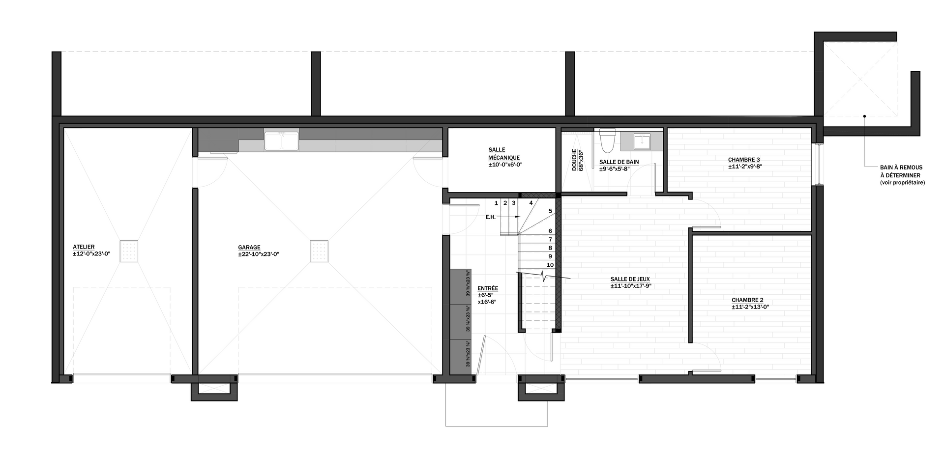
Bromontarchitecture modern barn
Modélisation 3D
Croquis
Tous droits réservés | Cydrick architecture